Descrizione
MASERA' DI PADOVA – Nuova lottizzazione
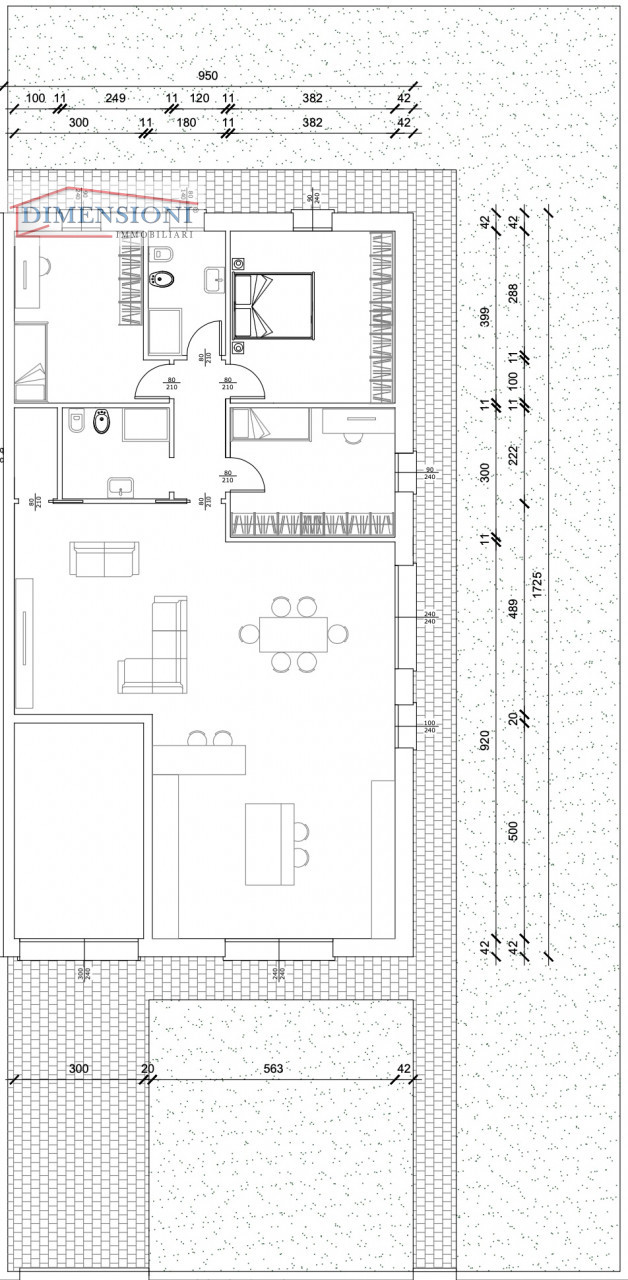
Proponiamo villa Bifamiliare moderna tutta su un unico piano, con spazi generosi e tanta luce naturale.
La zona giorno di 70 mq con salone e cucina a vista è davvero ampia e luminosa, perfetta per chi ama vivere in un ambiente accogliente, elegante e funzionale.
La zona notte dispone di 4 camere matrimoniali, doppio servizio e una pratica cabina armadi.
Completano la proprietà garage e un ampio giardino di 400 mq, ideale per momenti di relax all’aperto.
La villa è dotata di ventilazione meccanica controllata (VMC), riscaldamento a pavimento con pompa di calore, impianto fotovoltaico, e offre la possibilità di scegliere le finiture secondo i propri gusti, per una casa su misura, moderna e confortevole.
Una soluzione pensata per chi cerca stile, luminosità e funzionalità in ogni dettaglio.
Euro 420.000,00 Rif.591A
N.B. per motivi di privacy, l'indirizzo e il puntatore nella mappa sono indicativi e non corrispondono all'ubicazione esatta dell’immobile






